Projet Paris






PLAN EXISTANT
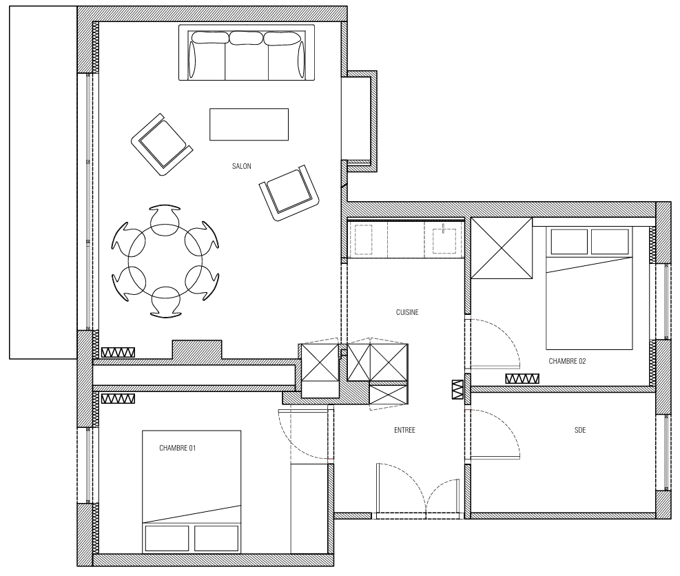
PLAN DU PROJET
Programme : Rénovation de l’entrée / cuisine et rafraichissement général de l’appartement
Surface : 60 m²
Localisation : Le Havre
Intention : Réorganiser l’entrée, précédemment aménagée en cuisine par les anciens locataires, afin de recréer une séparation claire entre l’espace d’accueil et la zone cuisine. L’aménagement vise un rendu minimaliste, avec un maximum de discrétion des éléments visibles.
Statut : Livré
images avant travaux
Architecture d’intérieur I Scénographie
+32455155474 I +336 25 94 86 05
atelieribolya@hotmail.com
BRUSSELS I NORMANDY I PARIS