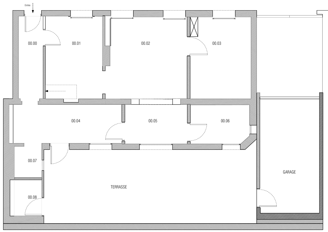
Projet Millot










EXISTANT
PROJET
Programme : Rénovation compète d’une maison
Surface : 100 m²
Localisation : Trouville-sur-Mer
Intention : Maison secondaire permettant d’accueillir du monde. Espace fonctionnels pour y faire du télétravail. Espace détente pour enfants. Doit être réfléchie pour une mises en locations temporaire
Statut : APD - chantier début septembre 2025
Images avant travaux
Architecture d’intérieur I Scénographie
+32455155474 I +336 25 94 86 05
atelieribolya@hotmail.com
BRUSSELS I NORMANDY I PARIS